Diese Vorstadtvilla steht auf einem sonnigen, großzügigen Grundstück in begehrter Höhenlage von Frankenholz – ein Ort, an dem Ruhe, Weitblick und gehobenes Wohngefühl aufeinandertreffen. Das Anwesen wurde vollständig kernsaniert und präsentiert sich heute als harmonische Verbindung aus zeitloser Eleganz und modernster Technik. Die Immobilie erreicht die Energieeffizienzklasse A und erfüllt damit sowohl ästhetische als auch energetische Ansprüche auf höchstem Niveau.
Objektbeschreibung
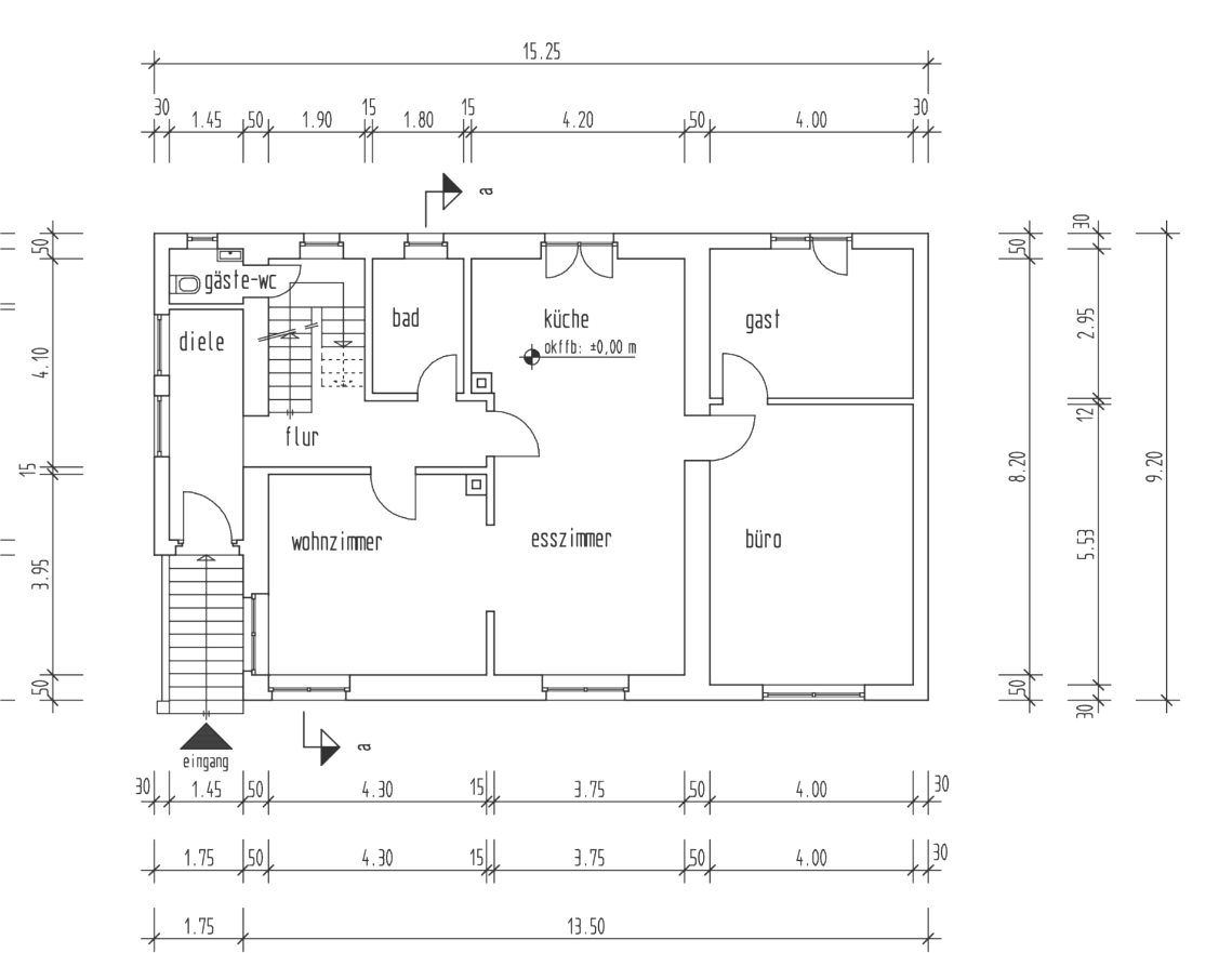
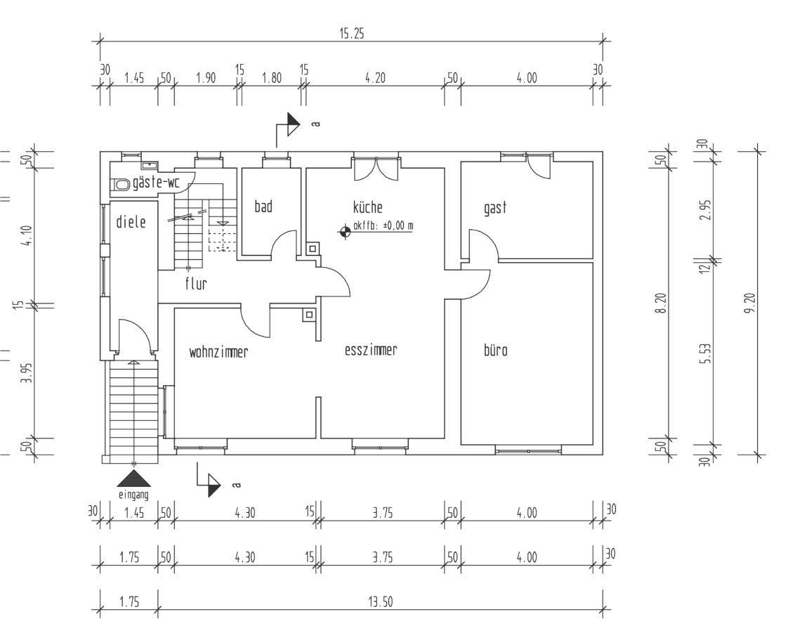
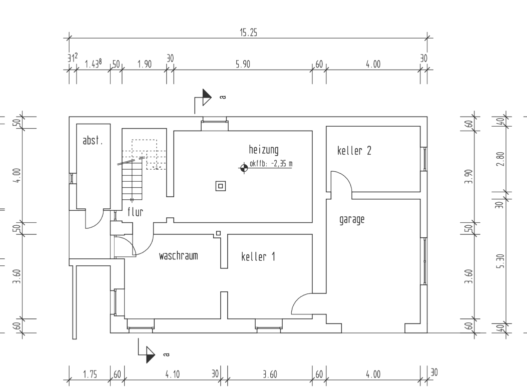
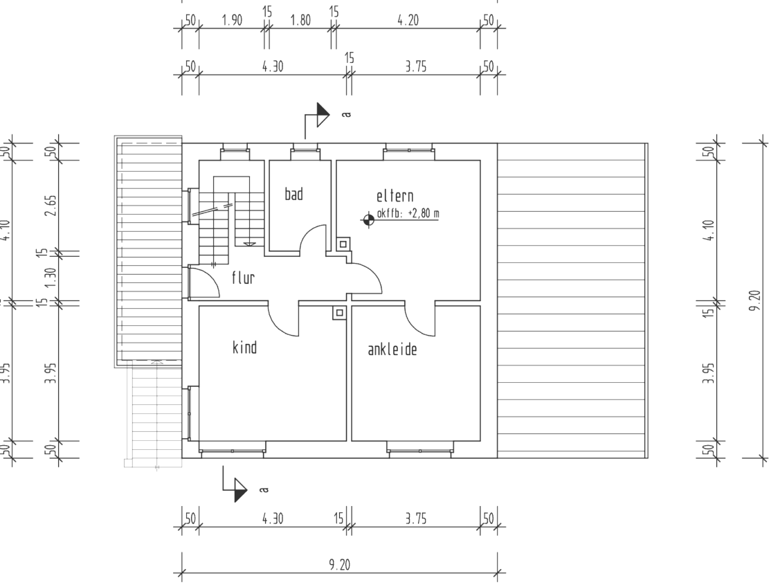
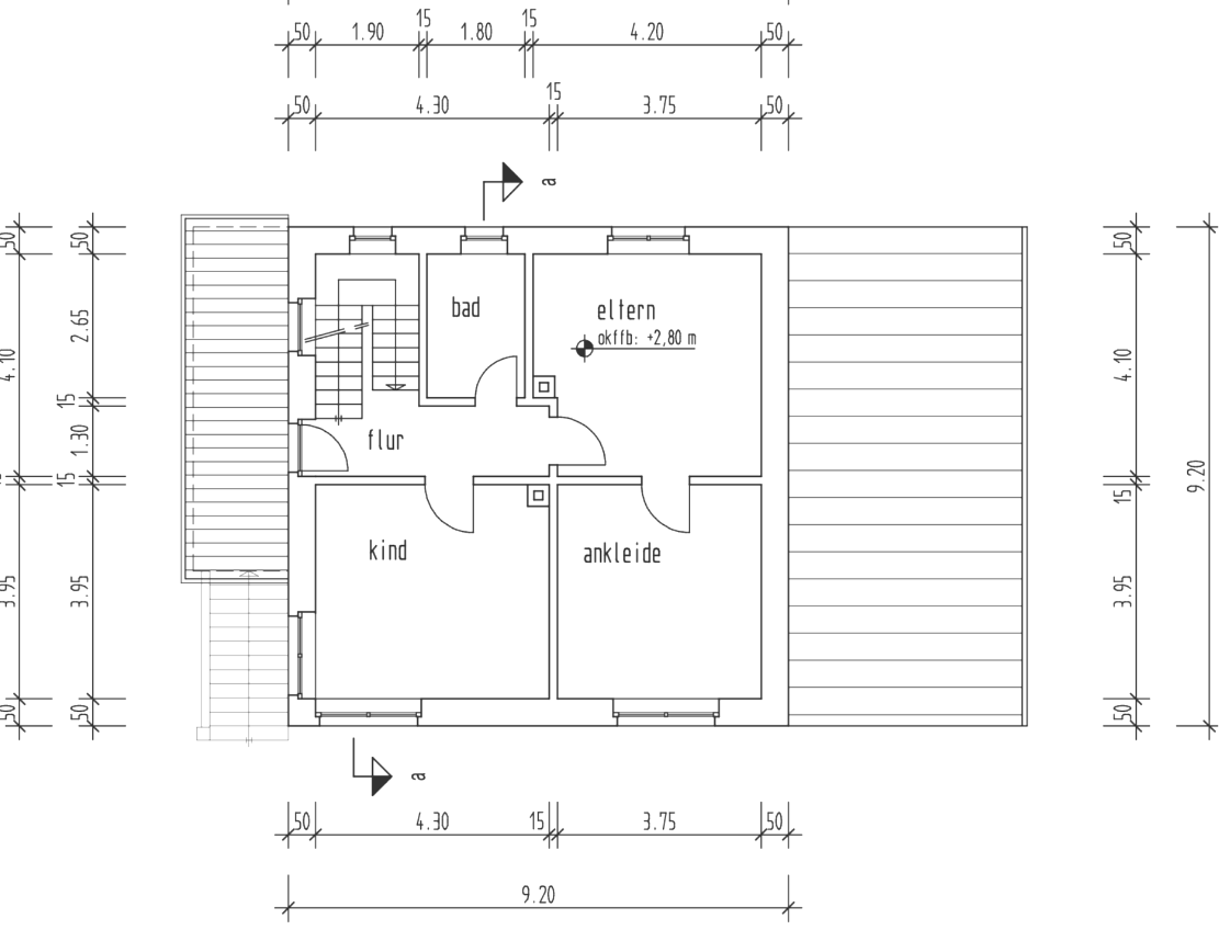
Die Liegenschaft erstreckt sich über drei großzügig gestaltete Etagen, die mit einem besonderen Sinn für Raumwirkung, Licht und Materialien geplant wurden. Bereits beim Betreten des Hauses fällt die konsequente Umsetzung eines modernen Wohnkonzepts ins Auge:
Natürliche Dielenböden sorgen für ein warmes, edles Ambiente, während stylische Fabrik- und Industrial-Elemente dem Objekt einen urbanen, charaktervollen Ausdruck verleihen.
Alle Innenräume wurden im Zuge der Kernsanierung vollständig erneuert.
Der Energieausweis ist in Bearbeitung und liegt zur Besichtigung vor.
* Wände und Decken wurden hochwertig überarbeitet,
* sämtliche Bäder sind neu gestaltet und mit modernen Sanitär- und Designelementen ausgestattet,
* die technischen Anlagen wurden umfassend modernisiert.
Auch die Außenhülle der Villa wurde neu gedacht: Eine energetische Fassadendämmung, hochwertige Materialien und eine stilvolle Farbgebung sorgen sowohl für Effizienz als auch für ein repräsentatives Erscheinungsbild.































































